ZAP Design: by Zoe Pettit
PORTFOLIO
RESUME
ART
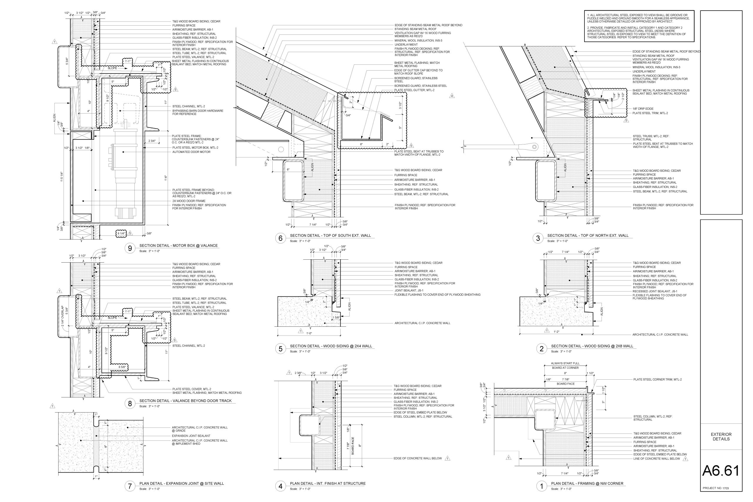
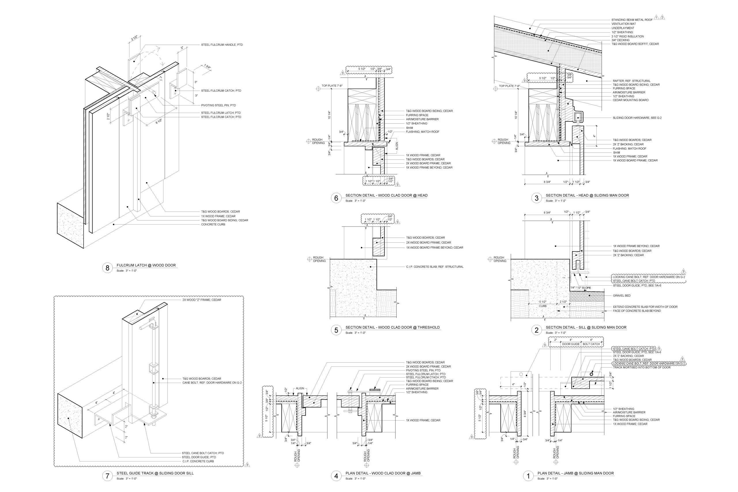
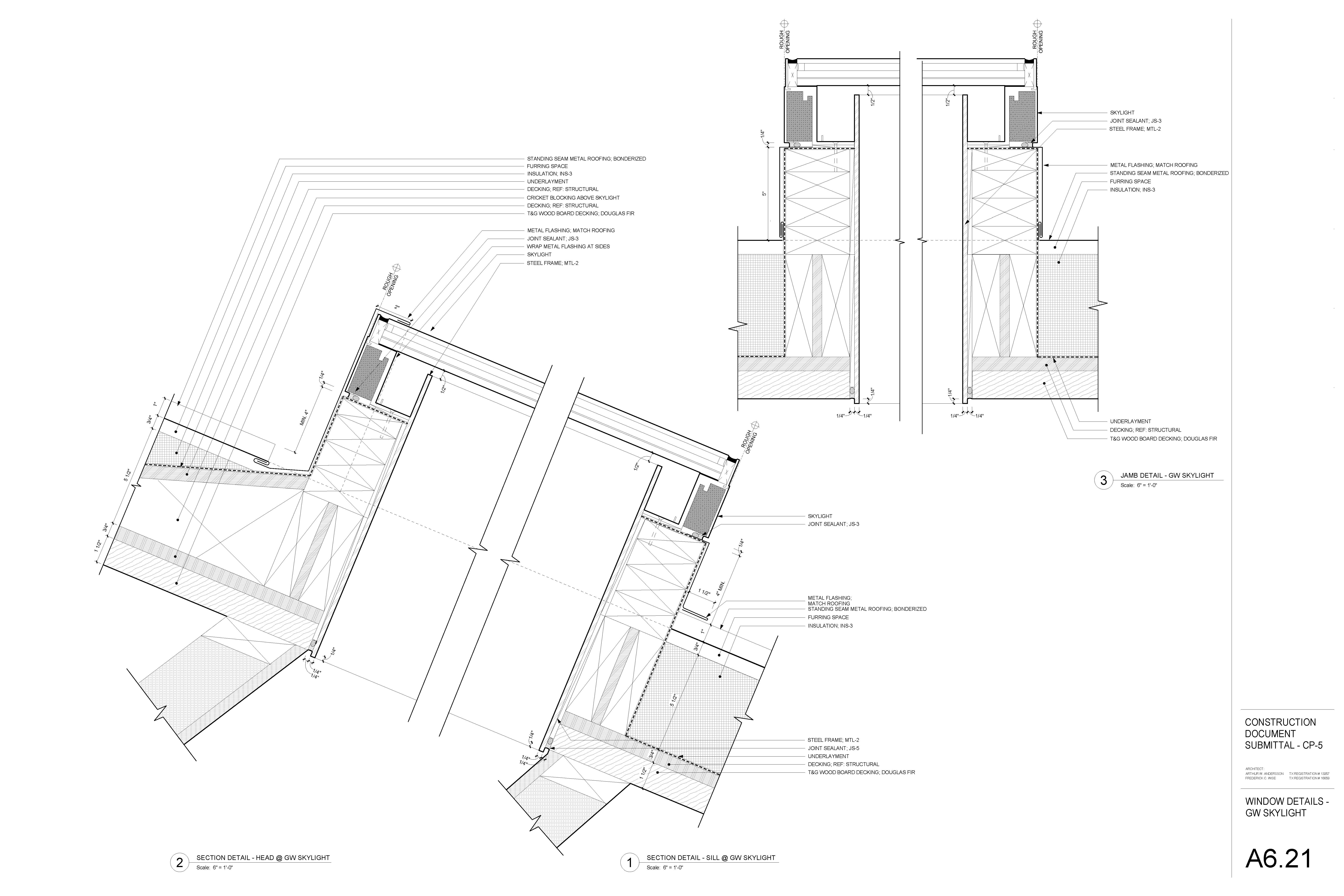
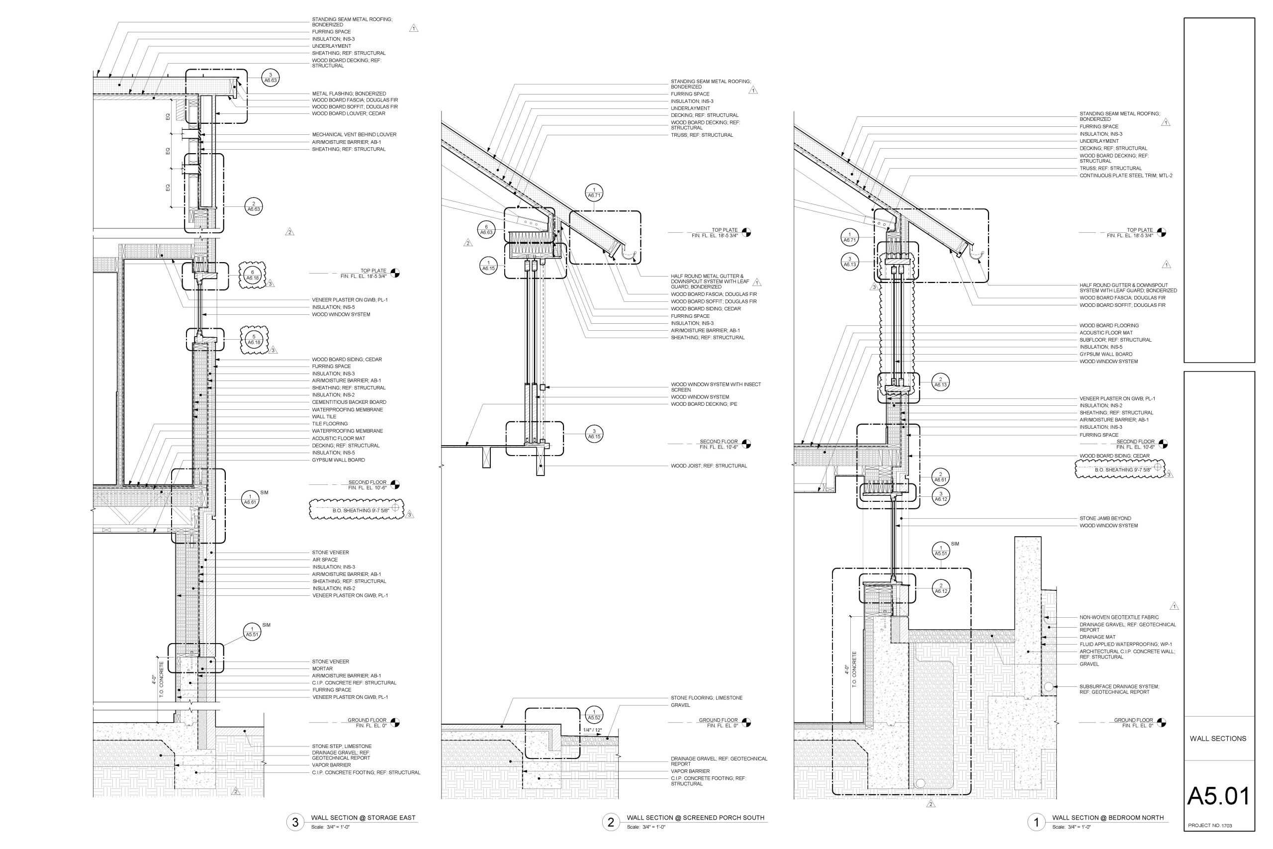
Miscellaneous Details